10701 Charleston Drive
View Full Details >Set on a corner lot where palm-tree-lined Windsor Boulevard meets the golf course in the heart of Windsor Village, this classic residence is a pleasant stroll from all of the Village Centre amenities.

Overview
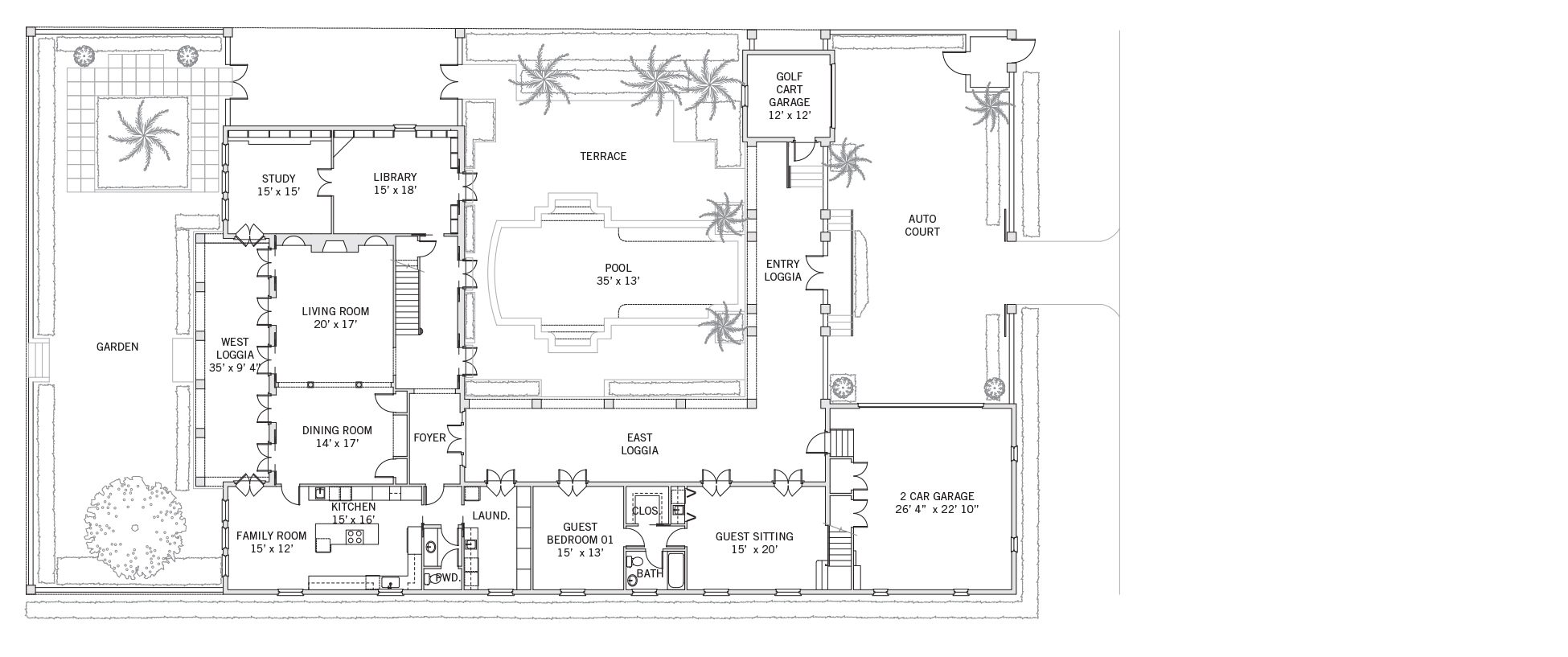
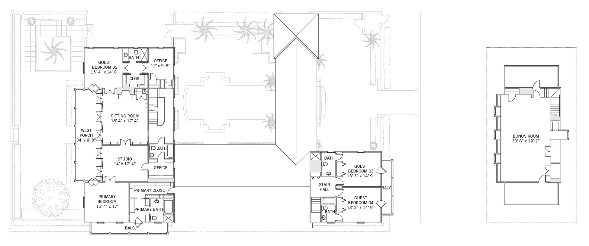
Set on a premier corner property along the golf course in Windsor’s Village, this 7,000+ square foot residence, originally built in 1995 is well-conceived. Its welcoming entry loggia leads to a central courtyard with a large swimming pool. Expansive living, dining, and entertainment areas, along with the bedrooms, capture sweeping western views of Windsor’s iconic links-style golf course. Designed for effortless indoor-outdoor living, all ground-floor spaces and most second-floor spaces open onto deep loggias or porches.


Property Details
Price
$5,950,000
Status
Available
Bedrooms
6
Bathrooms
6 Full, 1 Half
AC SQ FT
7,228
NON-AC SQ FT
2,959
LOT SQ FT
11,844
Location
Block 5 / Lot 1
Architect
James Gibson
Builder
Hill / Jones Construction
Year Built
1995
Property Location
10701 Charleston Drive


Property
Amenities



Ground Floor
Second Floor
LIVING &
ENTERTAINING
Crafted to frame scenic vistas, the home offers a seamless flow between interior and exterior spaces. On the ground floor, generously proportioned living and dining rooms open to a loggia overlooking the rear garden and golf course. A library and study extend to the central courtyard, while the open-plan kitchen and family room benefit from southern and western exposures. The second floor features two bedrooms and two living areas, each opening through French doors to a spacious shared porch with panoramic golf course views. Additionally, two courtyard-facing offices provide quiet retreats for work or study. A versatile third-floor space, enhanced by dormer windows, enjoys abundant natural light.



PRIVATE SUITES

Amenities
An extensive collection of amenities makes Windsor endlessly interesting and enriching.
LEARN MORE >

VERO BEACH
Windsor is located just 20 minutes from the historic center of Vero Beach, a charming seaside town on Florida’s Treasure Coast.
LEARN MORE >


















































