10895 Savannah Drive, No. 203
| 3 BEDROOMS
4 Full, 1 Half BATHROOMS
price: $3,795,000
Status: Contingent
Set on the second floor of Windsor Park Residences, this thoughtfully customized residence offers sophisticated indoor-outdoor, single-floor living with sunrise views over a tranquil park and sunset views over the conservation area.

Overview
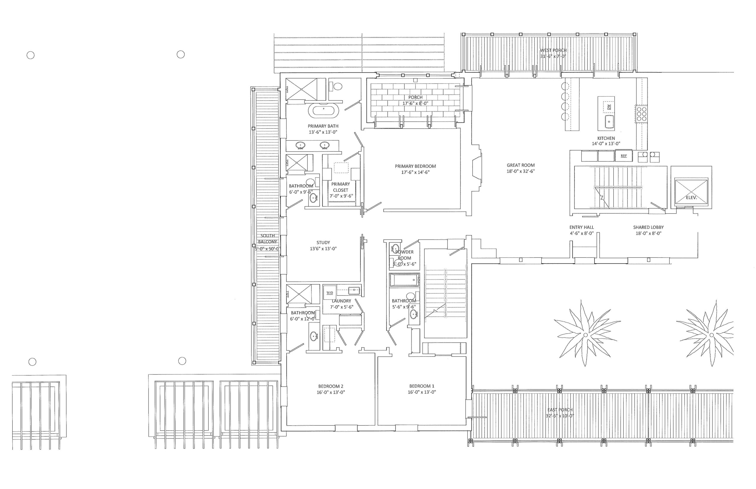
This elegant residence on the second floor of Windsor Park Residences features three bedrooms and a study with a full bath. Woodmode cabinets, serene white quartz countertops and custom lighting bring sophisticated touches to the kitchen, which features a breakfast bar and a separate island. Beautifully crafted interiors are finished with refined details including decorative millwork and 7”-wide oak flooring throughout all living areas. Porches and balconies off the dining area, primary bedroom, guest bedroom and study allow for seamless indoor-outdoor living.


Property Details
Price
$3,795,000
Status
Contingent
Bedrooms
3
Bathrooms
4 Full, 1 Half
AC SQ FT
2,738
NON-AC SQ FT
985
LOT SQ FT
N/A
Location
No. 203
Architect
Merrill, Pastor and Colgan Architects
Builder
Huryn Construction
Year Built
2018
Property Location
10895 Savannah Drive, No. 203


Property
Amenities

Floor Plan
LIVING &
ENTERTAINING
Spacious and filled with natural light, this residence has been designed in every detail for sophisticated single-floor living. Set on the second floor, it enjoys dramatic sunset views over the conservation area from the kitchen and the great room, which is anchored by a fireplace and offers generous living and dining areas. Three sets of French doors open from the dining area to a covered balcony with views of the central courtyard and reflecting pool. The balcony encourages outdoor dining and lounging in South Florida’s marvelous climate. A separate set of French doors leads from the dining area to a loggia-style porch off the primary suite. The contemporary kitchen, separate from yet open to the dining area, opens through French doors to the west-facing balcony.



PRIVATE SUITES
The primary suite features a loggia-style west-facing porch accessed via French doors. This suite has been thoughtfully designed to offer a spa-inspired bathroom and walk-in closet with custom built-ins. Both of the two guest suites feature an en-suite bathroom and one opens to an east-facing porch with views of the park. A study with a full en-suite bathroom opens to the south balcony.

Amenities
An extensive collection of amenities makes Windsor endlessly interesting and enriching.
LEARN MORE >

VERO BEACH
Windsor is located just 20 minutes from the historic center of Vero Beach, a charming seaside town on Florida’s Treasure Coast.
LEARN MORE >





















































