Barth Construction of VB, LLC – Plan A
| 4 BEDROOMS
4 Full, 1 Half BATHROOMS
price: $0
Status: Available
Entry to this home leads through a wide covered loggia to the main foyer with its immediate view of the pool courtyard.

Overview
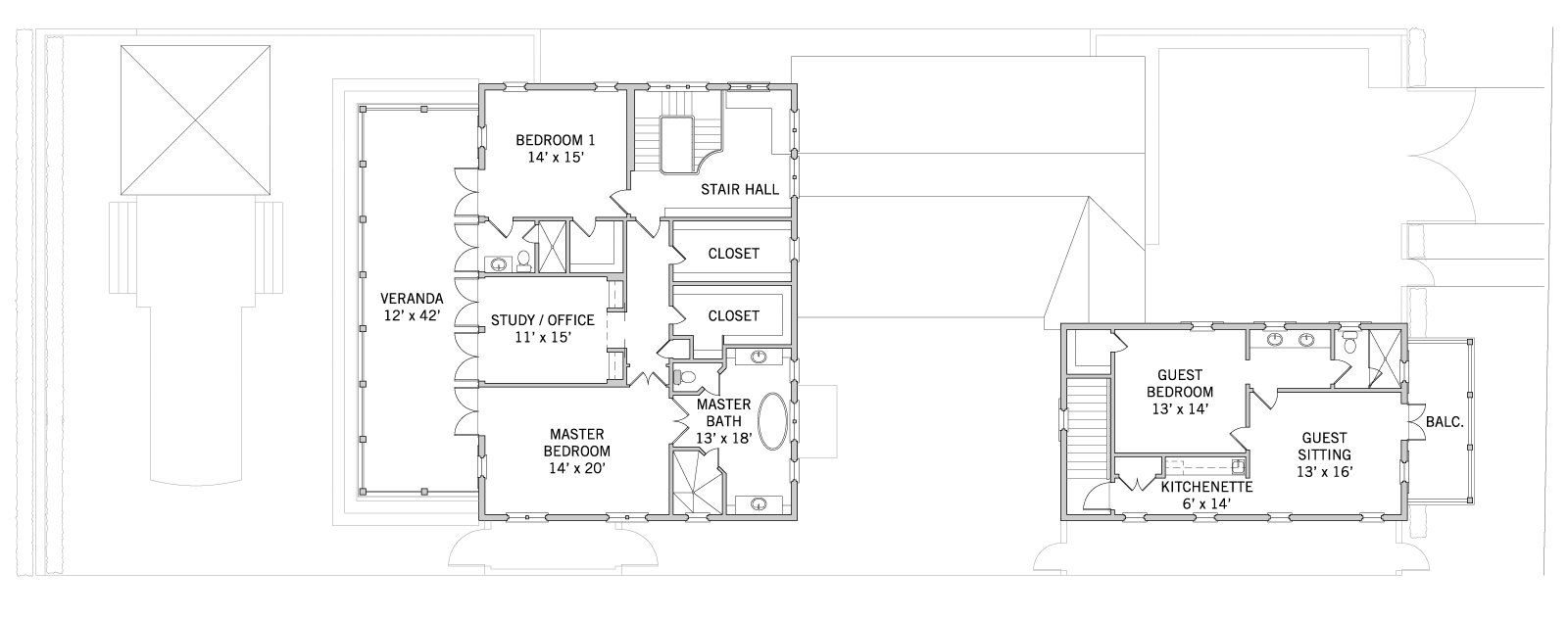
A great room spans the width of the home and features a series of French doors that open onto the pool and frame the lake and fairway views beyond. A well-appointed kitchen with a central island, large walk-in pantry and a home office space is conveniently tucked around a corner off the great room. The generously wide two-story veranda provides ample space for furniture, maximizing opportunities for outdoor living. Upstairs, the master suite boasts a luxurious bath, his and hers closets and a private study. A large bedroom suite on the ground floor can serve as a second master suite. The one-bedroom carriage house with kitchenette provides a private retreat for guests and completes this exceptional home design.

Property Details
Price
$0
Status
Available
Bedrooms
4
Bathrooms
4 Full, 1 Half
AC SQ FT
4,634
Architect
Brenner and Associates Architecture
Builder
Barth Construction of VB, LLC
Property Location
Barth Construction of VB, LLC – Plan A

Property
Amenities


Ground Floor
Second Floor
Amenities
An extensive collection of amenities makes Windsor endlessly interesting and enriching.
LEARN MORE >

VERO BEACH
Windsor is located just 20 minutes from the historic center of Vero Beach, a charming seaside town on Florida’s Treasure Coast.
LEARN MORE >
