Huryn Construction – Plan A
| 6 BEDROOMS
6 Full, 1 Half BATHROOMS
price: $0
Status: Available
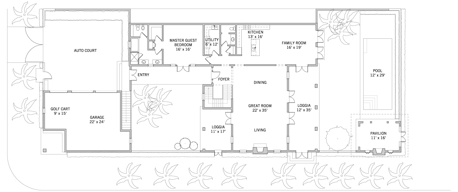
This South Village plan exemplifies Windsor’s indoor/outdoor lifestyle with porches and loggias linking the home’s interiors.

Overview
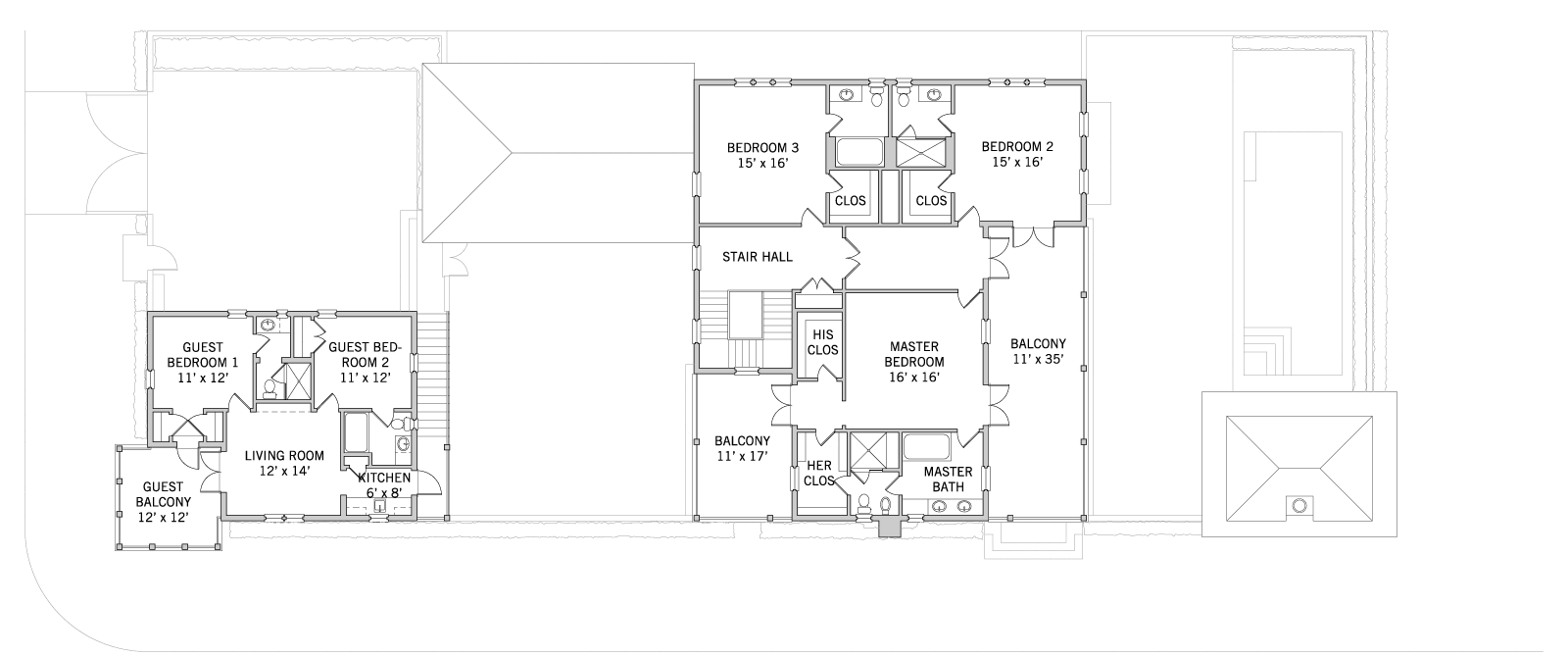
This South Village plan exemplifies Windsor’s indoor/outdoor lifestyle with porches and loggias linking the home’s interiors with the courtyard, garden and golf course, while also achieving required privacy. Fireplaces serve as focal points in the great room and outdoor pavilion. Placement of the fireplaces on the outer walls gives scale and grace to the house making it ideal for any corner lot. The integrated social areas and a guest suite are located on the ground floor. Upstairs, the master bedroom and two bedroom suites take full advantage of sunrise and sunset views. This exceptional home includes a versatile two-bedroom carriage house that features a comfortable living area, kitchenette and private balcony.

Property Details
Price
$0
Status
Available
Bedrooms
6
Bathrooms
6 Full, 1 Half
AC SQ FT
5,079
Property Location
Huryn Construction – Plan A

Property
Amenities


Ground Floor
Second Floor
Amenities
An extensive collection of amenities makes Windsor endlessly interesting and enriching.
LEARN MORE >

VERO BEACH
Windsor is located just 20 minutes from the historic center of Vero Beach, a charming seaside town on Florida’s Treasure Coast.
LEARN MORE >
