RCL Development, Inc. – Plan A
| 5 BEDROOMS
6 Full, 1 Half BATHROOMS
price: $0
Status: Available
The exceptional architecture of this South Village residence creates a timeless setting for comfortable and flexible living.

Overview
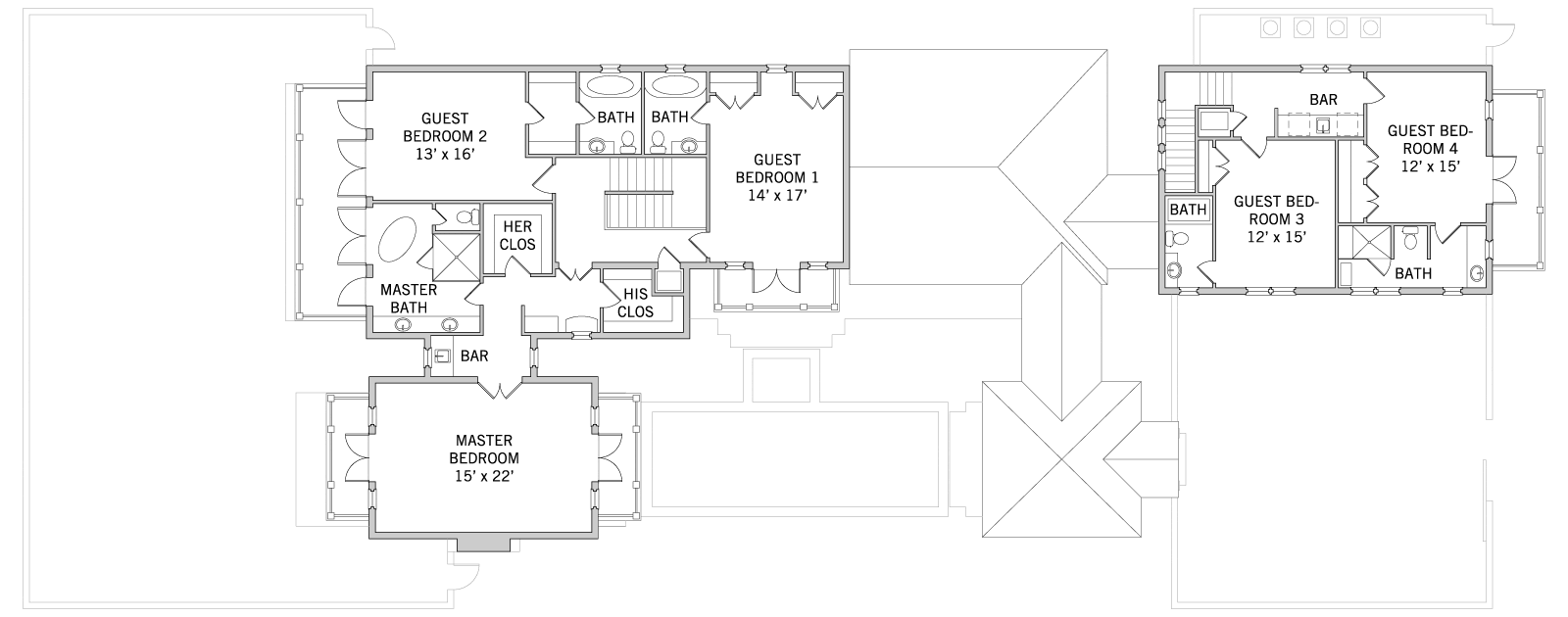
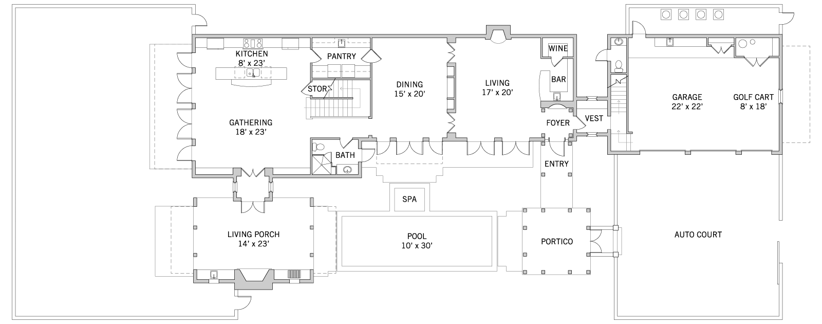
Upon arrival, the covered portico entry leads your eye down the centerline of the pool, through the spacious living porch and to the golf course beyond. The living room complete with fireplace, wine room and wet bar, features inverted hip ceilings with white painted beams. Sets of tall French doors with transoms above open onto the sunny pool courtyard and enhance the home’s light and airy feel. On the second floor, the master bedroom is architecturally isolated from the additional bedrooms, creating an intimate retreat. Covered verandas on both sides of the master capture stunning views of the golf course and pool courtyard below. A private stairway accessible from the main home and garage leads to the two-bedroom carriage house.

Property Details
Price
$0
Status
Available
Bedrooms
5
Bathrooms
6 Full, 1 Half
AC SQ FT
4,361
Property Location
RCL Development, Inc. – Plan A

Property
Amenities


Ground Floor
Second Floor
Amenities
An extensive collection of amenities makes Windsor endlessly interesting and enriching.
LEARN MORE >

VERO BEACH
Windsor is located just 20 minutes from the historic center of Vero Beach, a charming seaside town on Florida’s Treasure Coast.
LEARN MORE >
