The Hill Group – Plan A
| 5 BEDROOMS
5 Full, 2 Half BATHROOMS
price: $0
Status: Available
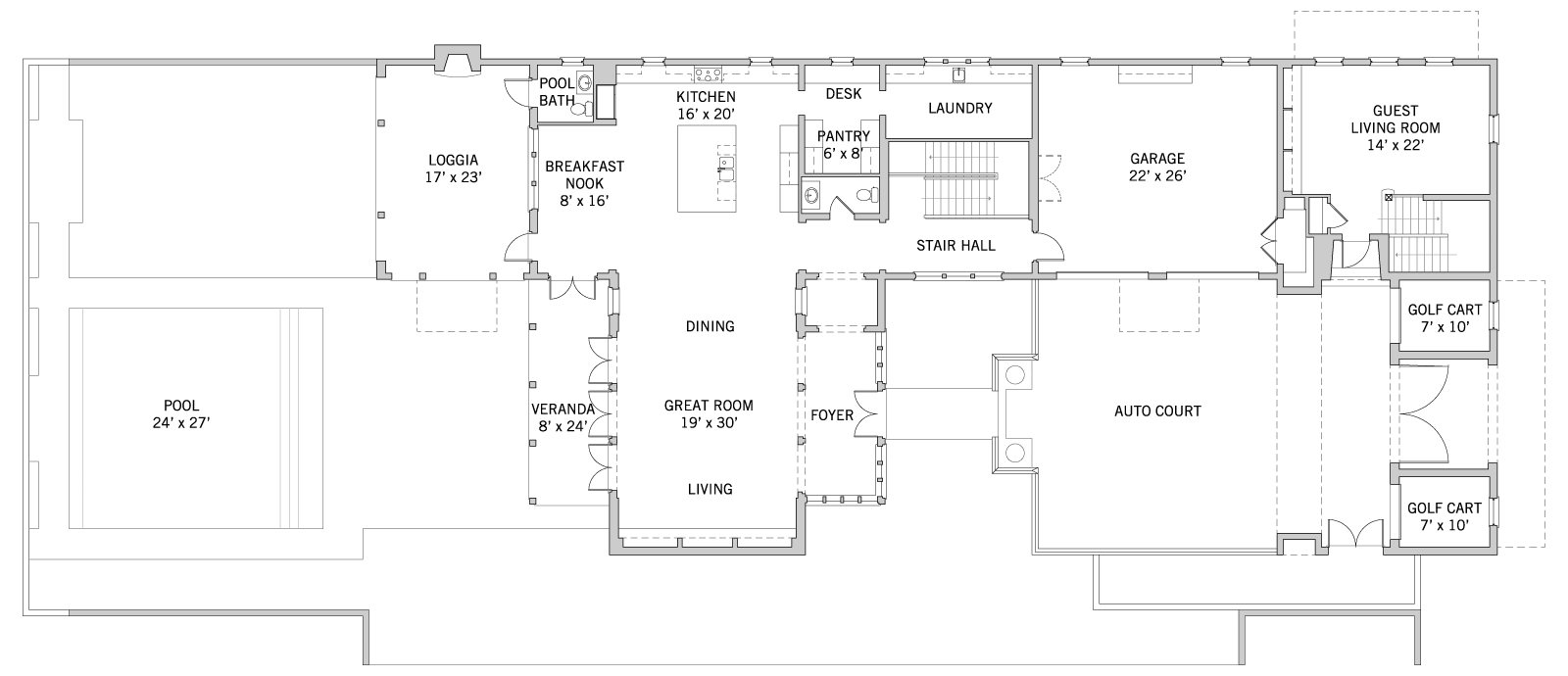
The arrangement of spaces within this home makes it very private from the street, yet open towards the garden and golf course, capitalizing on the exceptional South Village views.

Overview
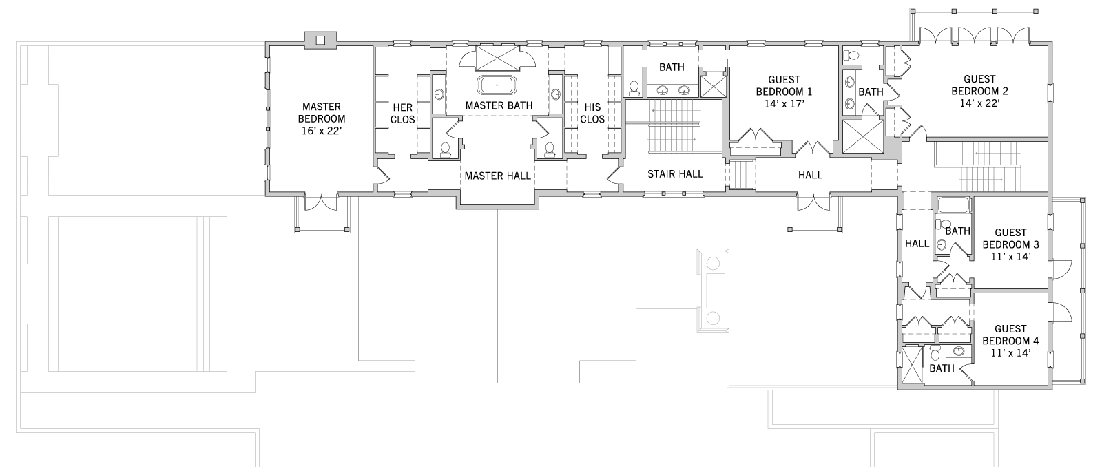
A large pool is surrounded by a series of layered outdoor spaces linking to the indoor social areas. Designed for entertaining, this plan features a large kitchen with a central island and cozy breakfast nook. The kitchen flows into the dining and living spaces of the great room creating a perfect setting for large gatherings. All bedrooms within the home are located on the second floor, with the master suite enjoying breathtaking views of the golf course and pool courtyard below. This flexible plan offers guests maximum privacy with a separate entry off the auto court.

Property Details
Price
$0
Status
Available
Bedrooms
5
Bathrooms
5 Full, 2 Half
AC SQ FT
6,274
Property Location
The Hill Group – Plan A

Property
Amenities


Ground Floor
Second Floor
Amenities
An extensive collection of amenities makes Windsor endlessly interesting and enriching.
LEARN MORE >

VERO BEACH
Windsor is located just 20 minutes from the historic center of Vero Beach, a charming seaside town on Florida’s Treasure Coast.
LEARN MORE >
